Полное исключение вероятности возникновения пожара и его распространения, даже при принятии всех необходимых мер, невозможно. Поскольку пламя поднимается не только по лестничным пролетам, но и через окна, эти зоны нуждаются также в дополнительной огнеупорной защите. Для того чтобы сдержать скорость распространения огня и проникновение веществ выделяемых при горении в другое помещение монтируются противопожарные окна, в технологии производства которых применяются специальные негорючие материалы.


Область применения, функция и понятие противопожарных окон
Горение происходит только если в помещении присутствует кислород и разрастается только при условии попадания в комнату новой порции воздуха. Обычные окна под влиянием повышенных температур растрескиваются, что и становится причиной быстрого выгорания помещения.


Противопожарное окно – конструкция для дополнительной защиты зданий и сооружений от распространения в них огня.


Такая преграда должна выдерживать требуемый норматив по времени воздействия тепла согласно категории пожарной безопасности здания.


Это далеко не единственная функция таких окон, кроме выше перечисленного они отвечают ещё и за:
- эффективное препятствие от проникновения огня в помещение;
- защита отсеков от продуктов, выделяемых при горении при установке их в противопожарной перегородке.
Такие конструкции стойкие к огню нужны там, где есть требования к безопасности людей и сохранения ценностей. К таким объектам относятся:
- библиотеки и архивные помещения;
- центры логистики;
- складские помещения;
- хранилища с нефтепродуктами и АЗС;
- объекты производства и торговли;
- образовательные учреждения;
- больницы и медицинские центры.
Противопожарные окна практически не применяются в обычном жилищном строительстве.
Если пренебречь рекомендацией по монтажу огнезащитных окон, открытое пламя может найти уязвимое место и продолжит свое распространение дальше по зданию. Противопожарные окна служат своего рода преградой на пути огня со стороны внешних стен.
Преимущества противопожарных окон


Повышение уровня пожаробезопасности на объекте далеко не единственное положительное свойство защитных окон, кроме того возникают ещё такие плюсы:
- препятствует потерям тепла из помещения;
- поглощает шум;
- устойчивость к ветровым нагрузкам;
- непроницаемость;
- приличный срок эксплуатации — не менее 15 лет.
Виды, классы и типы противопожарных окон


Критерий по выбору монтируемых противопожарных конструкций – предел устойчивости при воздействии огнем. По такому принципу окна подразделяются на 3 класса:
- 1 класс – ЕI Пожаростойкость не меньше 60 минут;
- 2 класс – ЕI Стойкость к огню 30 минут;
- 3 класс – ЕI Устойчивость к воздействию огня 15 минут.
Буква «Е» означает временной промежуток сохранения целостности конструкции при воздействии на неё повышенной температуры. «I» — время на протяжении, которого способность к теплоизоляции остаётся в проектируемых пределах.
Производители часто также обозначают противопожарные окна сокращением ОП с припиской цифр, которая означает тип категории огнеупорности окна, например ОП-1.
Типы противопожарных окон
Определение области монтажа конструкций регламентируется документом ГОСТ 53308-2009.
Тип 1


Время выдержки воздействия огнем – не менее 60 минут. Комплектация стеклопакета обычно из 6 слоев, 5 камер из которых заполнены гелем-антипиренам.
Устанавливают такой тип окон на объектах:
- с массовым пребыванием людей;
- в промышленных помещениях и зданиях;
- на складах с хранением пожароопасных продуктов или ценностей;
- в лабораториях, где проводятся различные опасные исследования;
- в зданиях с большой этажностью, если там расположен торговый или бизнес-центр.
Тип 2


Окна такого типа должны препятствовать огню не меньше 30 минут. Слоев здесь всего 3, заполнение между ними такое же – антипиреновое. Используется на объектах промышленности и коммерции, которые не относятся к категории пожароопасных зданий.
Тип 3


Время выдержки конструкции от пламени – 15 минут. Подходят только для установки в помещениях, предназначенных для жилья. Целесообразность их установки находится под вопросом, так как время их устойчивости от огня недостаточна, чтобы эффективно повлиять на защиту при пожаре.
Материал рамы (каркаса) для конструкции противопожарного окна


Разновидности огнезащитных оконных блоков по материалу их каркаса:
- поливинилхлорид (ПВХ);
- алюминиевый сплав;
- сталь;
- древесина.
Пластик (ПВХ)
Пластик имеет уязвимость при воздействии на него открытого пламени и стремительно размягчается, что способствует потере несущей способности конструкции из ПВХ. Кроме того вес стеклопакета достигает около 50 кг на 1 м2 материала рамы, с такой нагрузкой пластик просто не справится.
Такие окна нельзя относить к противопожарным, ввиду того что они горючи и выделяют токсичные вещества при горении.
Сталь
Является самым эффективным материалом по защите несущей способности конструкции из стекла при воздействии на неё огня. Чаще всего монтируются на объектах производства, складах с категорией пожаро- и взрывоопасной. Профиль из такого материала имеет единственный недостаток – большой вес конструкции. Ввиду того что он крайне тяжелый повышается трудоемкость по его транспортировке и при монтаже.
Алюминий


Огнестойкость такой рамы имеет средние показатели. Температура плавления алюминия составляет 660 °C. Для того чтобы начал происходить процесс размягчения материала нужно его подвергать постоянной температуре в 1000 °C не меньше 15 минут.
Собирают конструкции из сплава алюминия, используя теплый и холодный профиль:
- теплые, используются для установки в наружных стенах и отлично справляются с удержанием тепла в помещении;
- холодные, используются внутри здания как перегородки и на неотапливаемых объектах.
Отличие окон из алюминия от стальных в разнообразии цветов окраски каркаса, меньшем весе и в отсутствии подверженности материала к коррозии.
Древесина


Дерево при специальной пропитке антипиренами приобретает огнезащитные свойства и сохраняет свою несущую способность лучше, чем окна из ПВХ. Чаще всего класс огнестойкости деревянных окон относится к группе не выше 2.
Производители чаще всего выдают за деревянные окна каркас, который состоит из стали и только лишь верхние накладки делают из древесины или покрытия по текстуре очень похожего на неё. Изготовители поступают так вовсе не с целью обмануть покупателя, оконная рама из чистого дерева не способна выдержать всю нагрузку от стеклопакета.
Технология изготовления и конструкция противопожарных окон
Производство противопожарных конструкций не имеет принципиального отличия от изготовления обычных окон, различие заключается только в используемых негорючих материалах.
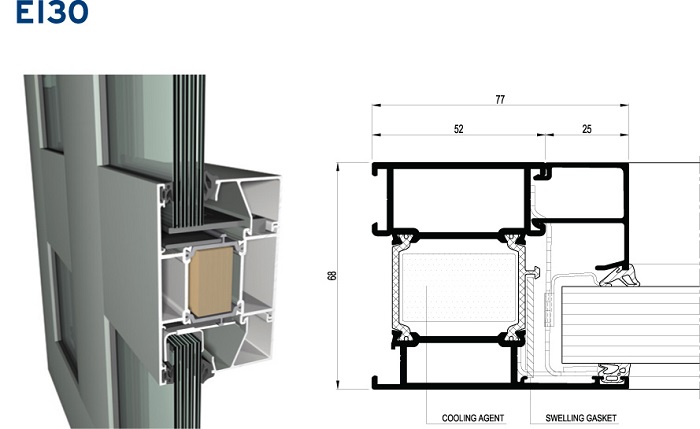
Основной элемент защитной конструкции – стеклопакет из огнестойкого прозрачного стекла. Кроме этого противопожарное окно состоит из:


- рамы, представляющей собой каркас для удержания стеклопакета в оконном проеме здания;
- накладного алюминиевого профиля;
- термостойких вставок;
- заполнителей для профиля;
- огнестойких герметиков заполняющих пустоты при сборке готового изделия.
Стеклопакеты для огнезащитной конструкции


Стеклопакеты собираются сразу из нескольких стеклянных полотен, промеж которых заливается специальный по химическому составу гель, скрепляющий при нагревании все полотно воедино. По внешнему виду он бесцветный и в условиях обычной эксплуатации не сказывается на пропускной способности света через окно.


На огнестойкость оконных блоков влияет количество слоев тонких силикатных стекол. Большое количество позволяет конструкции длительнее выдерживать воздействие пламени при пожаре, но в тоже время добавится вес и стоимость такого оконного блока.
Вес некоторых стеклопакетов для противопожарных конструкций достигает до 300 кг, это стоит учитывать на этапе проектирования здания при расчете его несущей способности, а также при изготовлении каркаса и установки самого окна.
Открывающиеся противопожарные окна


При желании такие окна могут быть оснащены створками с возможностью их открывания. Однако стоит помнить о том, что такое может допускаться только в помещениях, предназначенных для жилья при наличии в них устройств закрывания с автоматическим механизмом, подключенных к температурным датчикам. На прочих объектах в конструкциях оконных блоков не допускается наличие таких элементов:
- подвижных створок и форточек;
- ручек, щеколд и прочей фурнитуры.
Даже если изготовитель указывает, что окна относятся к классу ЕI60, но при этом они открываются, только из-за наличия активных элементов такая защита не может получить сертификат соответствия.
Габариты производимых окон
Существует 3 стандартных размера противопожарных окон:
- 1 х 1 м;
- 1,2 х 1,2 м;
- 1,5 х 1,5 м.
Многие производители изготавливают окна по индивидуальным заказам, в которых может отличаться как размер, так и форма огнезащитной конструкции.
Монтаж противопожарных оконных конструкций


Установка окон выполняется сотрудниками подконтрольных организаций с лицензией на деятельность от МЧС. Такие работы могут вестись как в новостройках, так и в уже возведенных зданиях. Главное во время монтажа соблюдать все правила, допуск любой ошибки может привести к прорыву дыма и открытого огня дальше по зданию.
Алгоритм установки состоит из нескольких шагов:
- выравнивание стен под ноль;
- очищение внутренней стороны проема от различной строительной пыли и мусора;
- закрепление оконных конструкций к стенам;
- заделка щелей, оставшихся после монтажа огнеупорной пеной;
- проверка швов и конструкции на герметичность;
- оштукатуривание откосов по периметру огнеупорными составами.
Применять в процессе монтажа окон дополнительные материалы нужно строго негорючих видов, проигнорировав это требование защита от огня попросту не сработает.
Запрещается также устанавливать добавочные элементы в виде козырьков и прочих конструкций для защиты от атмосферных осадков.
После выполнения работ специализированной организацией составляется акт за подписью ответственных лиц. При проверках здания сотрудниками государственного пожарного надзора данный акт предоставляется для ознакомления.
Предъявляемые требования к противопожарным окнам
Существует ряд определенных требований, после выполнения, которых конструкция считается по-настоящему противопожарной.
Сертификат


Противопожарное окно в обязательном порядке должно пройти испытания на основании которых выдается сертификат на изделие.
Нормативные документы
Требования к конструкциям строго регламентируются нормативами в области пожарной безопасности и содержатся в таких документах:
- ГОСТ Р53308-2009, содержит в себе методы испытания стойкости к огню конструкций из стекла;
- ФЗ №123, рассказывает о пределах стойкости к огню окон, требованиям к их целостности и о нежелательном превышении защищенных проемов более 25% их общей площади;
- СНиП 21-01-97, противопожарные требования к зданиям и сооружениям;
- СП 4.13130.2013, содержится нормативная база, определяющая сферу применения противопожарных окон;
- ГОСТ 35539-2013, регламентирует характеристики стекла, используемого для комплектации.
Изготовитель противопожарных окон – Фототех


Компания производит окна в соответствии с нормативными документами по пожарной безопасности из нержавеющей стали и алюминия уже более 30 лет. По желанию заказчика модели могут быть укомплектованы механизмом по самозакрыванию люков на окне при пожаре.
Гелезаливное пожаростойкое стекло «Щит»


Это уникальный продукт, стеклопакет представляет собой своеобразный триплекс стекла с прослойкой из негорючего геля толщина которого зависит от требуемого предела огнестойкости.
Принцип работы данного вида окна заключается в наличии в геле химически связанной влаги. При температуре свыше 100 С стекло становится непрозрачным, происходит постепенное высвобождение влаги при испарении которой прогрев стекла не превышает допустимой величины.
Гелезаливное стекло отличается от многослойных конструкций тем что при воздействии пламени гель не расширяется, а кристаллизируется.
Преимущества данного вида противопожарного окна является:
- его морозостойкость до -30 С;
- степень огнестойкости до 90 минут;
- использование во внутреннем и внешнем остеклении.
Стоимость за 1 м2 остекления – 8000 руб.
Монолитное пожаростойкое стекло ФТ-1


Стеклопакет данного вида подвергается специальной закалке и механической обработке, что позволяет ему выдерживать воздействие огня до 60 минут.
Преимущества конструкции из монолитного стекла:
- малая толщина и вес;
- устойчивость к УФ лучам и влажности;
- простота монтажа.
Цена за 1 м2 стекла – 5500 руб.
Безгелевые огнестойкие стеклопакеты ЩИТ для фасадного остекления


Огнестойкость в такой конструкции достигается с помощью комбинаций стекол различной толщины, закалки и напыления. Время выдержки воздействия огня до 60 минут.
Главное преимущество в возможности сочетания различных стекол, которые могут обеспечить такие дополнительные функции:
- термоизоляция;
- защита от УФ лучей;
- шумопоглащение;
- светоотражение;
- защита от вандалов и взлома.
Цена такого остекления за 1 м2 – 9000 руб.